Lodi – Via Secondo Cremonesi, Ufficio in affitto

  • €4,500

Descrizione

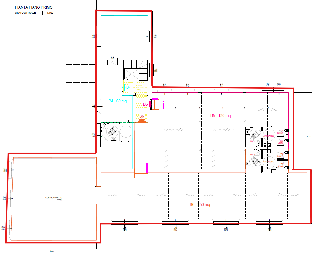
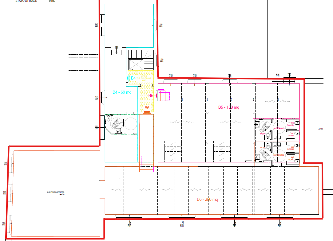
Lodi – Via Secondo Cremonesi | Ufficio di rappresentanza in affitto – 450 mq

Proponiamo ufficio in affitto di 450 mq al piano primo, frazionabile. La soluzione si distingue per gli ampi spazi, la grande luminosità e la funzionalità degli ambienti, ideali per aziende strutturate, studi professionali o società che necessitano di una sede operativa e di rappresentanza.

L’ufficio è inserito in un edificio in corso di riqualificazione, caratterizzato da ambienti moderni, ampie vetrate e un’immagine elegante e altamente rappresentativa.

Nello stesso edificio sono disponibili ulteriori uffici in affitto, di rara reperibilità, con metrature variabili da circa 100 mq fino a 450 mq, sia al piano terra che al primo piano.

Gli spazi, serviti da ascensore e privi di barriere architettoniche, offrono elevata flessibilità progettuale e possono essere personalizzati in base alle specifiche esigenze, sia nella distribuzione interna sia nella superficie complessiva.

Un intervento in cui qualità, cura dei dettagli e immagine sono al centro del progetto, pensato per offrire soluzioni moderne ed efficienti in un contesto professionale di alto livello.

Le immagini pubblicate si riferiscono allo stato di fatto e a ipotesi di riqualificazione.

Dettagli

Aggiornato su Marzo 11, 2026 a 9:03 am
  • Prezzo: €4,500
  • Dimensioni della Proprietà: 450
  • Piano: primo
  • Bagni: 7
  • Tipo di Proprietà: Ufficio
  • Tipo di Contratto: In Affitto

Indirizzo

  • Indirizzo via Secondo Cremonesi 4
  • Città Lodi
  • Regione Lombardia
  • Stato Italia

Caratteristiche

Compare listings

Confrontare
Linda
  • Linda