In raffinato contesto di corte, oggetto di completa ristrutturazione e riqualificazione energetica in classe A++++, proponiamo esclusivo appartamento cielo-terra in vendita con accesso indipendente.
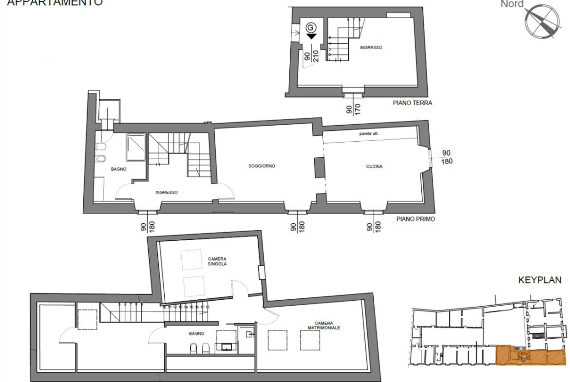
L’immobile si sviluppa su più livelli ed è così composto:
•Piano terra: ampio ingresso finestrato
•Piano primo: luminoso soggiorno, cucina abitabile e bagno
•Piano secondo: suggestiva mansarda con travi a vista con due camere, ulteriore locale ideale come guardaroba o studio, bagno e ripostiglio
Finiture di alta qualità con possibilità di personalizzazione dei materiali.
Box disponibili a parte € 33.000,00
Soluzione ideale per chi è alla ricerca di una dimora dal fascino caratteristico, confortevole, luminosa e dal design contemporaneo.
Le foto rappresentano sia lo stato di fatto che la possibile realizzazione ad abitazione ultimata.
€ 595.000,00